Wohngebiet Liebigstraße
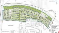
An der Liebigstraße werden 1.600 Wohneinheiten für etwa 3.300 Einwohner entstehen. Bis zur Nordumgehung und zur Hans-Kreiling-Allee reicht das 28 Hektar große Gebiet, das in der Region Maßstäbe setzt.
Der Bebauungsplan „Liebigstraße Süd“ umfasst im Wesentlichen die etwa fünf Hektar große Fläche des Gleisschwellenwerkes, das die Eigentümer geräumt und an das Wohnungsbauunternehmen Weisenburger (Rastatt) verkauft haben. Zum Norden – mit 18,5 Hektar das größte Gebiet innerhalb des gesamten Areals - zählen der ehemalige Bau- und Wertstoffhof der Kommunalen Betriebe, der an die Feuerwehr umgezogen ist, die Gewerbebetriebe und jede Menge Ackerland. Als Entwicklungsträger tätig ist hier die Firma Bonava (Fürstenwalde), die die Langener Terrassen an der Elisabeth-Selbert-Allee errichtet hat und neben Privatleuten und weiteren Investoren auch an der Liebigstraße Nord bauen wird.











