Arbeiten, Wohnen, Leben: Alles an einem Ort
Grundsteinlegung für „Advancis Campus“ westlich der Bahnlinie
Startschuss für die Entstehung des „Advancis Campus“: Die Grundsteinlegung durch Vertreter der Advancis Software & Services GmbH um Gesellschafter und Geschäftsführer Jan Meiswinkel, der Stadt Langen mit Bürgermeister Jan Werner an der Spitze sowie der LIG Bau markiert den offiziellen Baubeginn für das Großprojekt westlich der Bahnlinie. In den kommenden Jahren wird dort ein Campus mit urbanem Charakter und viel Grün entstehen. Neben Büroflächen in großem Umfang werden ergänzende Nutzungen realisiert: Restaurants, Kindertagesstätten, Sportbereiche und Wohnungen, darunter auch sogenannte Serviced Apartments. „Ein Leuchtturm-Projekt für die Stadt und die gesamte Region“, sind sich Jan Meiswinkel und Jan Werner einig.
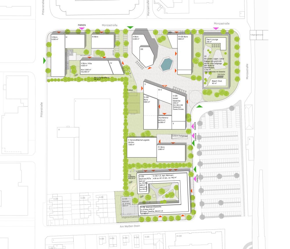
Advancis wird dabei den größten Teil des etwa 3,5 Hektar großen Areals zwischen Bahnlinie, Pittlerstraße, Am Weißen Stein und Monzastraße bebauen. Die nutzbare Bruttogeschossfläche beläuft sich nach Abschluss aller vier geplanten Bauabschnitte auf gut 67.500 Quadratmeter. Großzügige Grünflächen (zusammen rund 11.400 Quadratmeter) sollen für eine hohe Aufenthaltsqualität sorgen. Auf einem kleineren Teil des Gesamtgeländes lässt sich der IT-Dienstleister Dacoso nieder, der knapp 4.700 Quadratmeter Büro- und Serviceflächen schafft.
Die ersten städtischen Überlegungen zur Entwicklung eines solchen Campus – damals noch unter dem Oberbegriff Technologiepark – zwischen Bahnlinie und Pittlerstraße gehen rund zehn Jahre zurück. So ziemlich von Anfang an mit im Boot: die in den 1990er Jahren in Darmstadt gegründete und seit 2004 in Langen ansässige Firma Advancis. Das damals im Monzapark eingemietete und stark wachsende Unternehmen bezog 2015 einen eigenen Neubau an der Monzastraße, sozusagen das Pionierprojekt des Campus.
In den Folgejahren erwarb eine eigens gegründete Immobilien-Gesellschaft weitere Flächen, um ihre Ideen weiterentwickeln zu können. „Motivation für den Campus war, dass das Umfeld für unser Unternehmen und die Mitarbeiter noch nicht genug bietet: Adäquate Büroflächen fehlen und temporäre Wohnmöglichkeiten, etwa für Einarbeitungsphasen, sind in Langen kaum gegeben. Auch für die durchgängig hier tätigen Mitarbeiter ist Wohnen in der gewünschten Qualität und Lage oft nicht erschwinglich, die Kinderbetreuung stellt eine Herausforderung dar“, beschreibt Jan Meiswinkel.
Büros, Wohnungen, Restaurants, Kitas, Sportbereiche und viel Grün haben zukünftig Platz auf dem Terrain des „Advancis Campus“. Plan: Advancis
Neben der Erweiterung ihrer Hauptverwaltung möchte die IT-Firma weiteren in Langen tätigen Unternehmen Erweiterungsmöglichkeiten bieten. Die gemischte Nutzung wird insbesondere auf junge IT-Fachleute und Ingenieure zugeschnitten, die in Langen für einige Monate eingesetzt werden und dafür ein attraktives Angebot mit Service-Wohnen brauchen. Eine bedeutende Fläche mietet zudem das Bundesaufsichtsamt für Flugsicherung (BAF) an, das derzeit noch in der Robert-Bosch-Straße ansässig ist.
„Das städtebauliche Konzept orientiert sich an der Campusidee klassischer Prägung“, erklärt der Advancis-Geschäftsführer: „Eine relativ lockere Bebauung, umspült von durchgrünten Freianlagen, bieten hohe Aufenthaltsqualität für die Menschen, die hier nicht nur arbeiten, sondern sich in ihren Pausen und nach der Arbeit auch regenerieren können. Dafür sind ergänzend entsprechende Angebote aus den Bereichen Gastronomie, Sport und Wellness geplant.“
Ein wichtiger Aspekt ist die Schaffung von Kinderbetreuungsplätzen. Insgesamt sind im Campus zwei Kitas projektiert. Die erste davon mit einer Krippen- und drei Ü3-Gruppen entsteht im jetzigen ersten Bauabschnitt und soll im August 2023 eröffnet werden. Die ansässigen Unternehmen werden auf ein Kontingent an Belegplätzen in den Betreuungseinrichtungen zugreifen können und damit einen großen Mehrwert für ihre Mitarbeiter bieten. Der überwiegende Teil steht für Langener Familien zur Verfügung. „Advancis übernimmt damit auch eine soziale Verantwortung nicht nur für die eigenen Mitarbeiter, sondern für die gesamte Stadt“, freut sich Bürgermeister Jan Werner.
Geregelt wird die Entwicklung des Campus über einen städtebaulichen Vertrag zwischen Advancis und der Stadt Langen, der kurz vor der Unterzeichnung steht. Parallel zum ersten Bauabschnitt werden zudem die weiteren Schritte vorbereitet: Die Verhandlungen mit einem Betreiber der ersten Kita stehen kurz vor dem Abschluss, ebenso der Verkauf noch städtischer Grundstücke an Advancis und die Firma Dacoso. Darüber hinaus wird bei der Stadt die Neuaufstellung des Bebauungsplans „IT-Campus westlich des Bahnhofs“ mit Hochdruck vorangetrieben. Dies ist für die weiteren Bauabschnitte erforderlich. „Gegenüber den aktuellen Vorgaben werden wir dadurch das Dreifache an Bürofläche ermöglichen“, erläutert Joachim Kolbe, städtischer Fachbereichsleiter unter anderem für Wirtschaft und Stadtentwicklung.
Im Gegensatz zu früheren Überlegungen bleibt der Park-and-ride-Platz westlich der Bahnlinie in seiner jetzigen Form erhalten. Für den Campus werden in einer Tiefgarage sowie einem Parkhaus circa 1.000 Autoabstellplätze geschaffen, womit das gesamte Areal oberirdisch autofrei wird. Für E-Autos wird eine Ladeinfrastruktur bereitgestellt, ebenso ist eine Carsharing-Station geplant. Radfahrer finden nicht nur Abstellplätze in der Tiefgarage, sondern auch eine Fahrradreparatur-Station und Lademöglichkeiten für E-Bikes. Zudem profitiert der Campus von seiner direkten Nähe zum Bahnhof. Wird für den ersehnten Anschluss Langens an die Regionaltangente West (RTW) eine Haltestelle auf dessen Westseite errichtet, stellt Advancis eine eventuell dafür benötigte Teilfläche von rund 300 Quadratmetern kostenfrei zur Verfügung.
„Das wird ein Campus allererste Güteklasse“, betont Bürgermeister Jan Werner. Zu diesem Fazit ist auch das Frankfurter Beratungsunternehmen Bulwiengesa gekommen, das im Auftrag der Stadt im Vorfeld der Planungen ein Machbarkeitsscreening vorgenommen hat. Ganz besonders hebt Jan Werner hervor, dass sowohl Advancis als auch Dacoso die Immobilien selbst erbauen: „Das ist von beiden Unternehmen ein ganz klares Bekenntnis zum Standort Langen. Über dieses Vertrauen freuen wir uns natürlich sehr.“
„Wir wollen ein attraktives Umfeld für uns, aber auch für andere Unternehmen und deren Mitarbeiter schaffen. Mit dem heutigen symbolischen Spatenstich machen wir einen wichtigen Schritt, dieses Ziel zu erreichen und freuen uns über die Unterstützung der Stadtverwaltung und der politischen Gremien“, fasst Advancis-Geschäftsführer Jan Meiswinkel das Projekt zusammen.
Weitere Details zum „Advancis Campus“ finden sich unter www.advancis-campus.de im Internet.


