Anpassung an präzisierte Zielsetzung
Bebauungsplan für Advancis-Campus liegt öffentlich aus
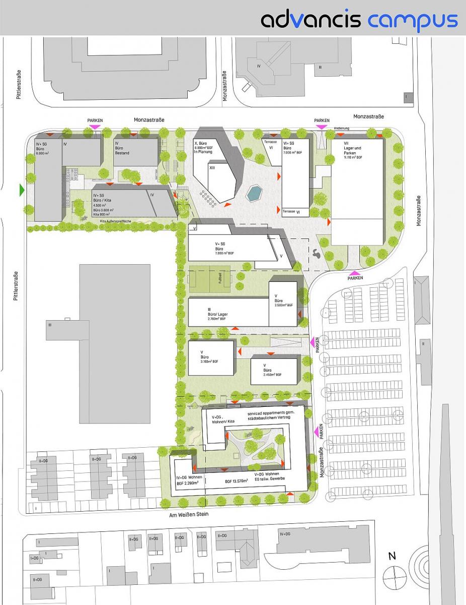
Der Startschuss für die Entstehung des „Advancis Campus“ im Karree zwischen Pittlerstraße, Monzastraße, der Straße Am Weißen Stein sowie der Bahnlinie fiel bereits vor knapp zwei Jahren. Seitdem hat sich einiges getan auf dem Areal: Zwei Bürogebäude sind fertiggestellt, eines davon beherbergt die viergruppige, von der Arbeiterwohlfahrt betriebene Kita „Start-up“. Parallel zu den Bautätigkeiten hat der Magistrat die planerischen Voraussetzungen für die vorgesehene weitere Entwicklung vorangetrieben. Im Februar hat die Stadtverordnetenversammlung der aktualisierten städtebaulichen Konzeption zum Bebauungsplan Nr. 2.I.B „IT-Campus westlich des Bahnhofs“ zugestimmt und den Plan als Entwurf beschlossen. Im Rahmen der Beteiligung der Öffentlichkeit kann der Plan vom 18. März bis zum 19. April eingesehen werden, zudem können Stellungnahmen, Anregungen und Hinweise abgegeben werden.
Ziel ist es, die im bisherigen Bebauungsplan Nr. 2.I.A größtenteils nicht genutzten Flächen zu überplanen und eine stärker gemischte Nutzung zuzulassen. Das Konzept sieht eine Entwicklung des insgesamt etwa 3,5 Hektar großen Areals in mehreren Bauabschnitten zur Schaffung eines campusartigen Standortes mit Büro- und Gewerbeflächen, Konferenzmöglichkeiten, Gastronomie, Dienstleistungen, Kinderbetreuung, Aufenthalts- und Grünflächen, Serviced Appartements sowie Wohnraum in einem urbanen Gebiet im Bereich der Straße „Am Weißen Stein“ vor.
Bei der Entwicklung des Technologie-Campus arbeiten Stadt und Advancis Software & Services GmbH eng und gut zusammen. „Wir freuen uns, dass wir mit dem Unternehmen und seinen Gesellschafter und Geschäftsführer Jan Meiswinkel einen in Langen fest verwurzelten Partner haben, um diesen besonderen Standort als Leuchtturm-Projekt bestmöglich zu gestalten. Mit der Schaffung von insgesamt zwei Kindertagesstätten übernimmt Advancis nicht nur eine soziale Verantwortung für die eigenen Mitarbeiter, sondern für die gesamte Stadt.“
Im Rahmen der öffentlichen Auslegung können sich die Bürgerinnen und Bürger zwischen 18. März und 19. April über die Planung informieren, alle Unterlagen einsehen und sich dazu äußern. Der Entwurf samt aller weiteren Dokumente stehen auf der Internetseite www.langen.de im Bereich „Bauen/Umwelt – Bebauungsplanung – Im Verfahren befindliche Bebauungspläne“ zur Verfügung. Parallel können sie während der Öffnungszeiten des Rathauses sowie nach Absprache im Rathaus (Fachdienst 13 Bauwesen, Stadtplanung, Umwelt- und Klimaschutz, Zimmer 331a) eingesehen werden. Um vorherige Terminvereinbarung unter der Telefonnummer 06103 203-631 oder per E-Mail an stadtplanung@langen.de wird gebeten.
Stellungnahmen, Anregungen und Hinweise zu der Planung können bis 19. April per E-Mail (stadtplanung@langen.de) oder schriftlich (Stadt Langen, Fachdienst 13, Südliche Ringstraße 80, 63225 Langen) vorgebracht werden.

